Two cubes, One villago back to all projects
-
Two Cubes and a View:
When our team took over the project, the main structure had already been built, featuring a central spiral staircase. The building faced the city on the west and opened toward a lush forest and green hills on the east.
Our first design move was to redefine this dual relationship between the street and the landscape. We reduced the size of the western forecourt and extended the eastern terraces to embrace the natural view. This shift brought daylight and a stronger connection to the surroundings into the living spaces.
The entrance sequence was reimagined to create a sense of transition and privacy. Instead of opening the door directly into the interior, the path now leads through a small courtyard. A cantilevered canopy forms a semi-open threshold that marks the boundary between the public exterior and the private interior.
The architectural composition was shaped around two cubic volumes. These cubes define the character of the exterior while also influencing the spatial experience inside. Form and space work together to create a coherent architectural identity.
One of the main challenges was persuading the client to move away from the classical aesthetic originally intended for the building. Through continuous dialogue, the project evolved into a more contemporary expression that reflects a modern approach to living while maintaining a close relationship with its natural setting.
-
-
stage 0; initial state
The client initially requested a "Roman-style façade" that had been previously designed by another designer before our involvement.
-
stage 1: The Existing Structure as a Framework for Architectural Design
When we joined the project, the building’s structure had already been completed, featuring a central spiral staircase at its core.
-
stage 2: Two Cubes, One Villa
Two cubes defined the final identity of the building; elements that play a key role both in the exterior expression and in the organization of the interior space.
-
stage 3: Formation of the Final Design
To create formal distinction and define the project’s character, the cubes were designed with a color and texture contrasting the rest of the building.




-






-

-

-
-
-

-
ground floor plan
1 Entrance, 2 Restroom, 3 Kitchen, 4 Dining table,
5 Living room, 6 Bedroom, 7 Terrace, 8 Swiming pool , 9 Parking -
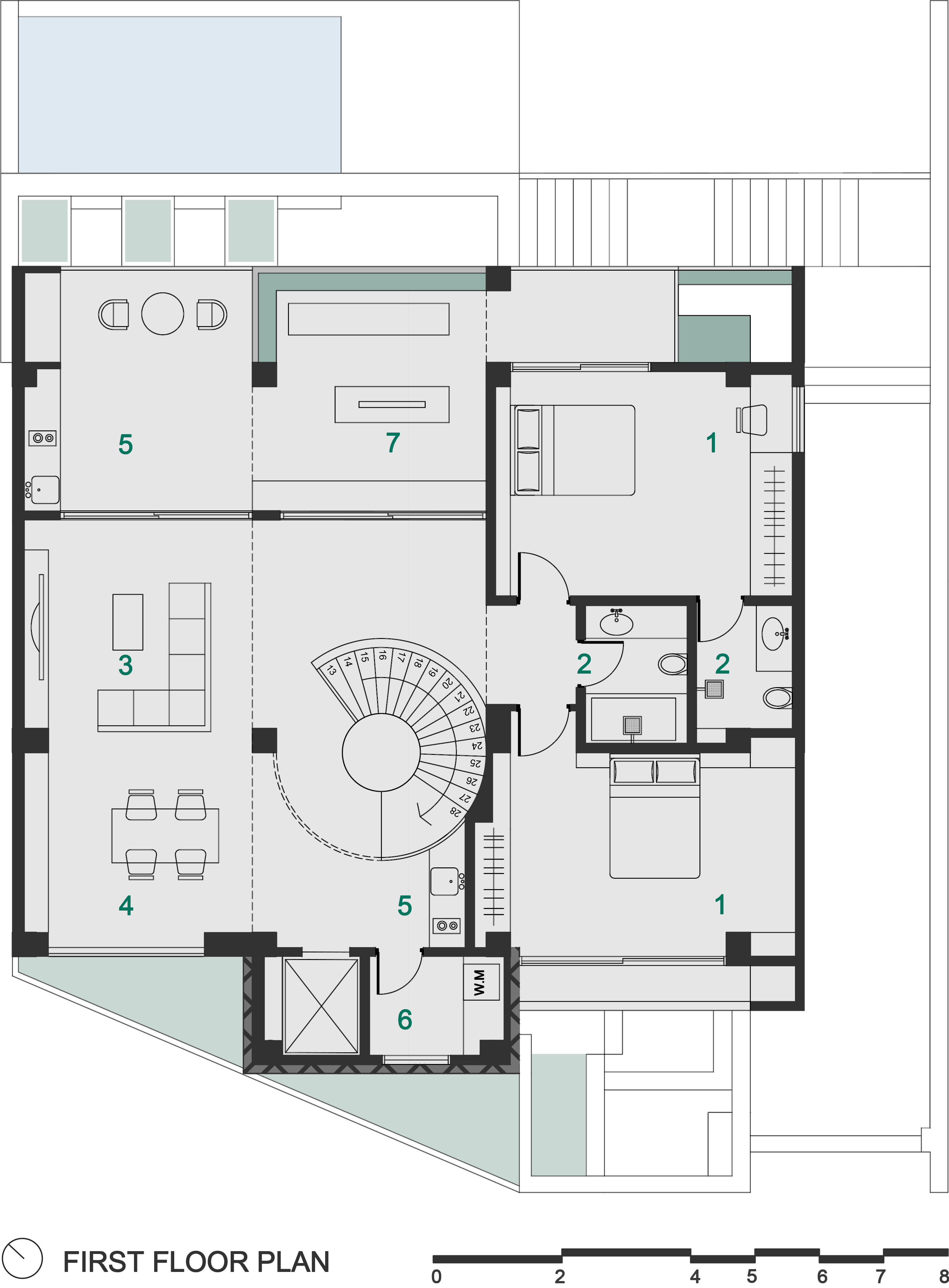
first floor plan
1 Bedroom, 2 Bathroom, 3 Living room, 4 Dining table,
5 Mini kitchen, 6 Landry, 7 Fire box

























